LIITO 120

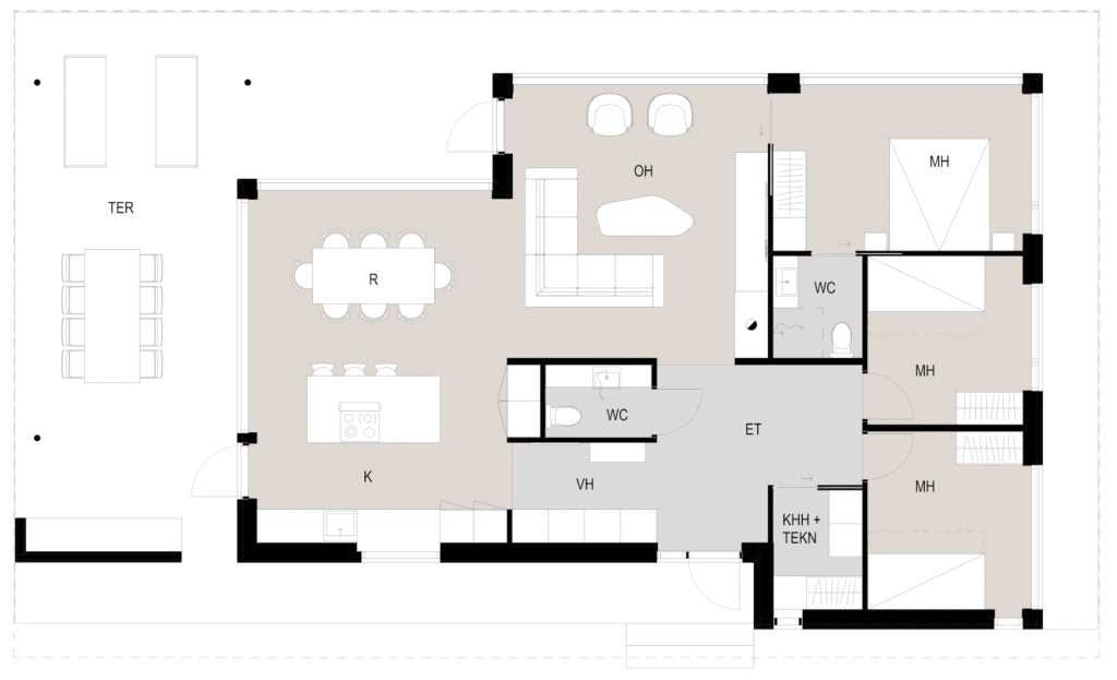
Lennokkaan Liito-sarjan suurin malli on Liito 120. Se on näyttävä ja moderni vapaa-ajan asunto. Mallin pohjaratkaisu on avoin, kierrettävä ja vaikuttava.

Päämakuuhuoneella on oma kylpyhuone ja valtavat ikkunat maisemaan. Oleskelu- ja ruokailutila avautuvat päämaisemaan päin, suuri keittiö on sulavasti nurkan takana.

Massiivisen katon alla on tilaa myös terassialueelle ja kesäkeittiölle.

Kerrosala 120 m²
Huoneistoala 108 m²